Clint Bank, Clint
£799,999
4 Bedroom Detached House
A fantastic four bedroomed detached family home offering flexible living accommodation throughout which has been well planned and accessed via a shared driveway through secure electric gates benefitting from stunning views of Nidderdale.
Download Property Brochure (PDF)
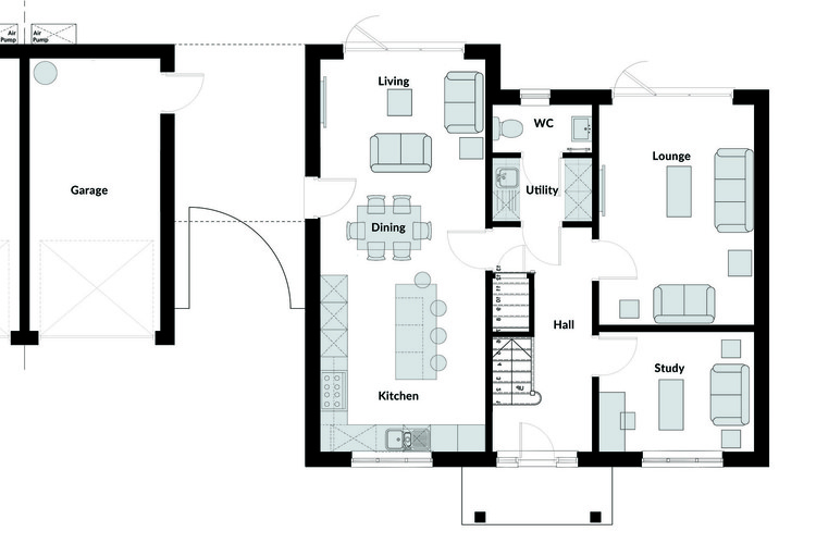
The living accommodation comprises, entrance hall, snug/study, spacious lounge with bi-folding doors leading out into the rear garden, downstairs w/c and a full length living/dining kitchen. The kitchen includes, 20mm Silestone worktops, integrated appliances including double oven, microwave, dishwasher, fridge, freezer, wine cooler, washing machine and tumble dryer. There is also a side door leading to a covered walkway to the link attached single garage.
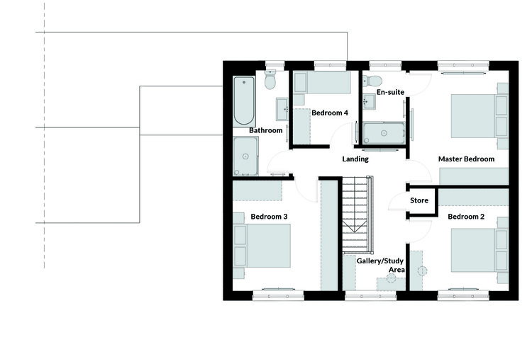
On the first floor the landing leads to the Master bedroom suite and ensuite shower room with walk in shower, w/c and hand basin. Second and third good sized double bedrooms, fourth bedroom and modern house bathroom with Porcelanosa floor and wall tiles, walk in shower, separate bath, w/c and wall hung vanity unit and hand basin, chrome towel rail and contemporary white sanitary ware.
Outside to the front of the property there is a block paved driveway, link attached single garage, lawn areas both front and to the rear where there are amazing views over Nidderdale. With a gated access there is a path leading to the rear garden where there is a patio area and a fully enclosed lawn perfect for children and pets.
Key features:
An exceptional 4-bedroom detached family home
10-year structural warranty with Premier Guarantee
Air source heat pump, PV panels & EV car charging point
BT Ultrafast Full Fibre broadband
Dual keypad intruder alarm to dwelling and garage
Myson Touch2 WiFi Programmable room thermostats
Underfloor heating throughout the ground floor
Link attached single garage
Dalesview is located in the picturesque village of Clint, Nidderdale, North Yorkshire. Benefitting from a stunning position on the fringe of open countryside, this idyllic destination is conveniently close to the delightful Burnt Yates, Birstwith, and Ripley. Clint is easily accessed via major roadways and is only a short drive away from Harrogate, a Victorian spa town and rural district that contains the medieval city of Ripon, a designated area of outstanding natural beauty and four charming but very different market towns; Boroughbridge, Knaresborough, Masham and Pateley Bridge.
Dalesview is a bespoke selection of only 8 new high-quality properties, comprising 3, 4, and 5 bedroom homes designed to provide the ultimate living experience. Encompassing Rouse Homes’s superb specification, Dalesview is a testament to Rouse Homes’s exceptional standards and quality.
The development is conveniently placed, being located just a mile away from the ‘Outstanding’ Ofsted-rated Hampsthwaite Church of England Primary School with an array of facilities within Clint and the surrounding area, and having access to major transport links.
DIRECTIONS: Proceed out of Harrogate towards Ripley and follow the road towards Pateley Bridge on the B6265. Proceed up Bedlam Bank and towards Burnt Yates. At the crossroads turn left onto Clint Bank where Dalesview is found on your left hand side.
Location
Viewings
For more information or to arrange a viewing please call our Harrogate office on 01423 501 201 quoting reference HOP/17957449 or email us.
